Fire Rebuild
Santa Barbara, CA
ARCHITECT: Hector Magnus
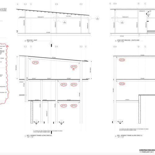
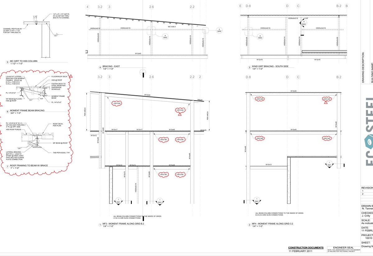
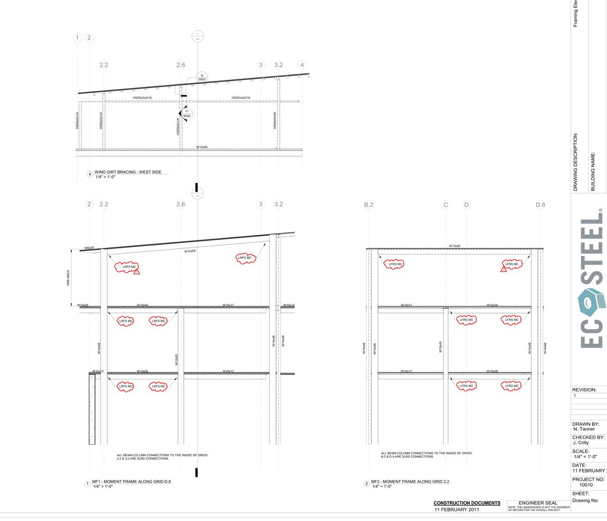
Ultra Modern Prefab Home by Architect Hector Magnus This amazing design expresses the strength and beauty of the all metal and modern fire resistant prefabricated home. EcoSteel Bolted Frame and Custom Roof/Wall & Trim components provide a fire resistant and energy efficient building envelope. Faced with rebuilding after a firestorm that devastated the community, the owner — a well-respected artist…
EcoSteel Building Systems
Learn more about this project
Whether you are an architect, contractor or want to build with EcoSteel, contact us today!











































































