STRUCTURAL DETAILS
3D Modeling, Engineering and Detailing
LATEST ENGINEERING TECHNOLOGY
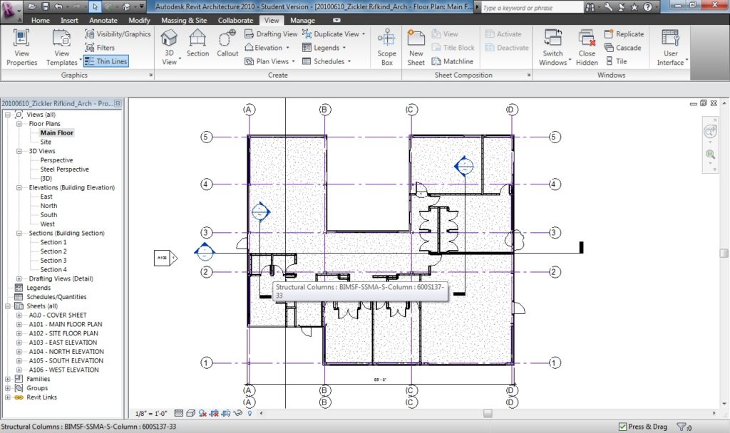
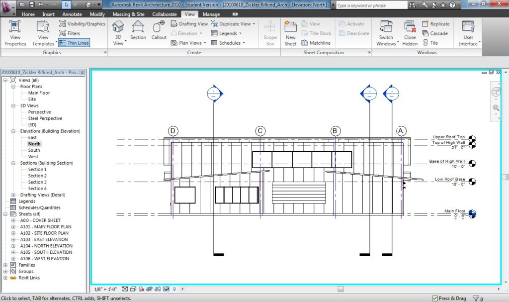
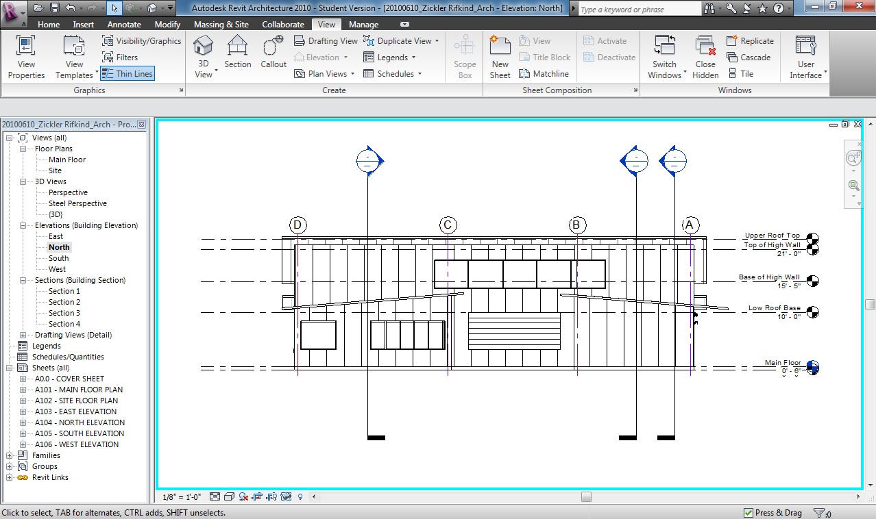
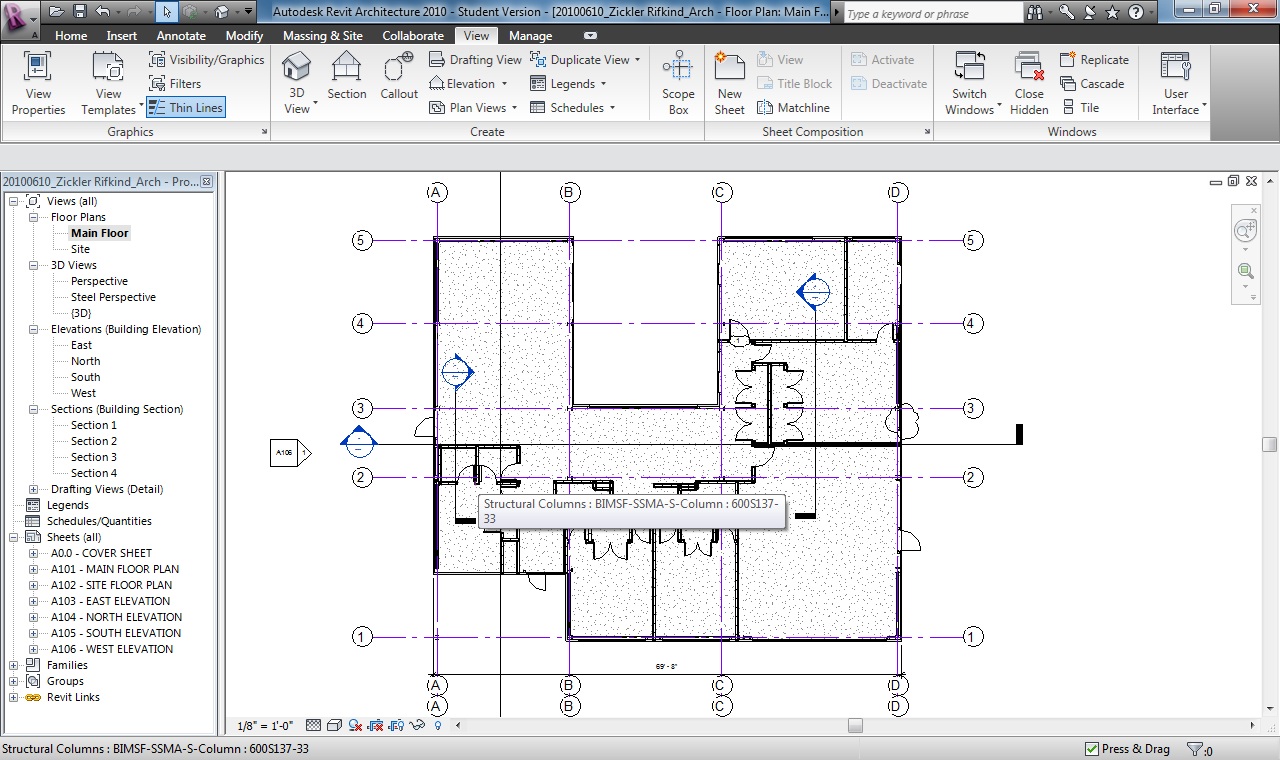
All EcoSteel steel building designs are created using the latest in BIM (Building Information Management) software and Parametric 3Dimensional Engineering Technology. This intelligent and precise engineering ensures the highest level of build quality and provides an accurate design process.
Engineered Steel Structure
Construction starts with our pre-cut, pre-drilled I-Beam Steel Structure for rapid on-site assembly. Our commercial grade steel frames offer superior strength which opens up interior volumes and enables creative, cutting-edge designs with unique metal building details.







