Modern Construction
Breckenridge, CO
ARCHITECT: KoDA Miami
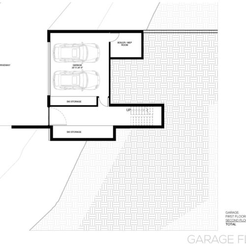
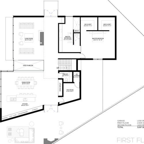
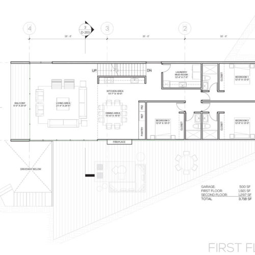
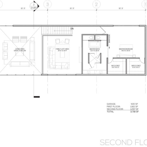
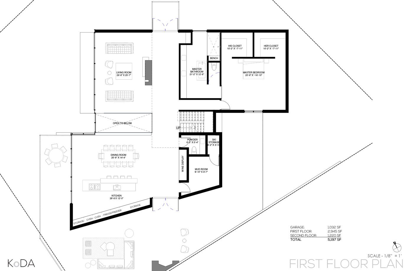
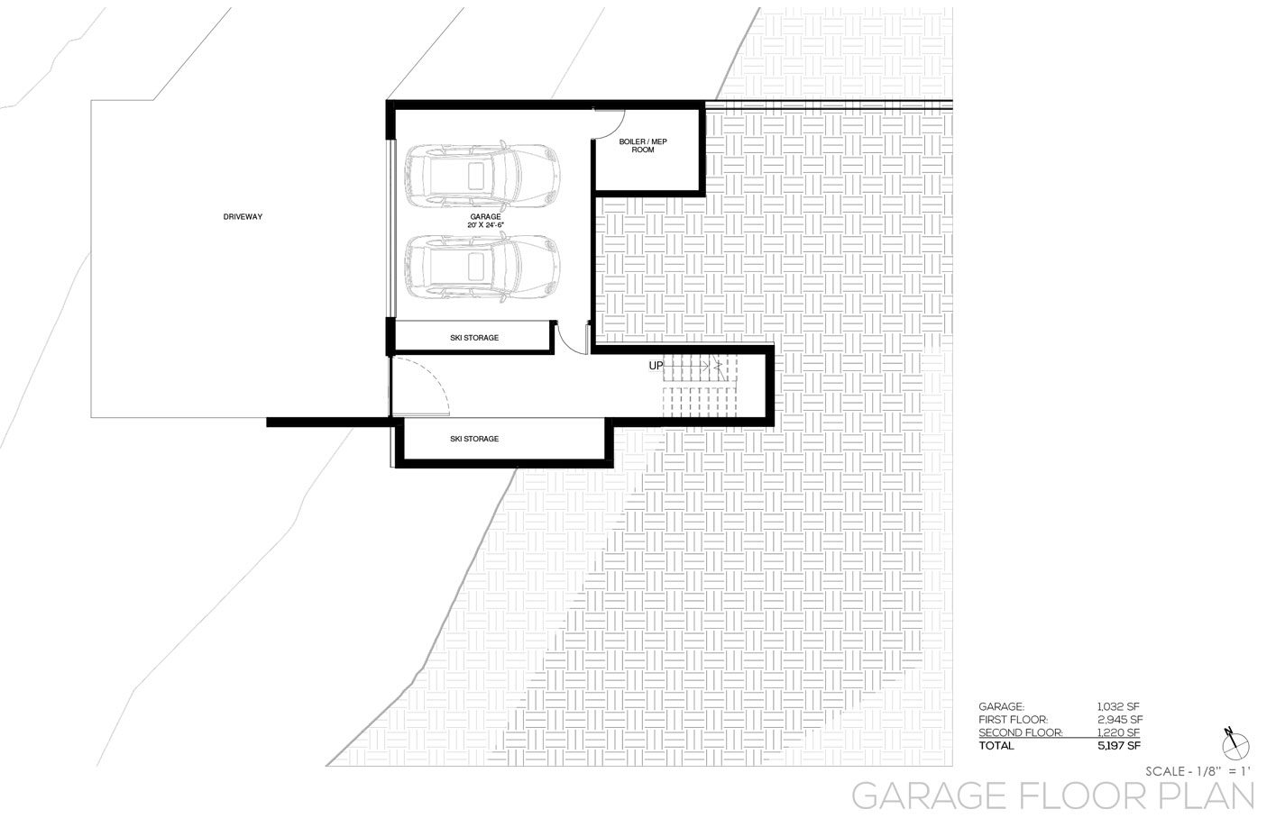
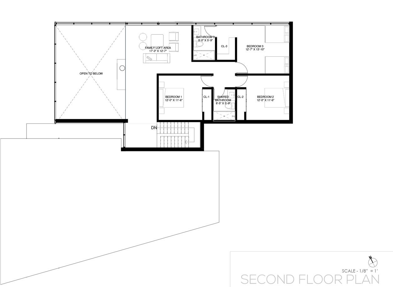
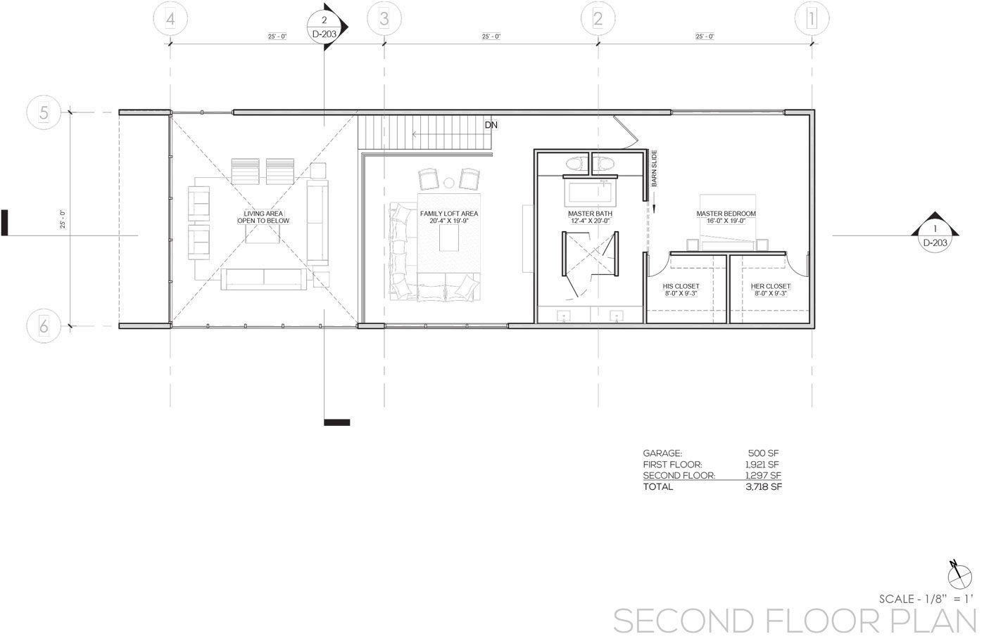
Custom Home with KoDA Miami COMPLETION DATE: SUMMER 2018 Set alongside Colorado’s Tenmile mountain range, this modern custom prefab home in Breckenridge serves as a gathering place for an active family. They imagined a retreat that would accommodate groups of extended family and friends and provide a connection to the landscape and surrounding views for year-round recreation, especially during the…
EcoSteel Building Systems
Learn more about this project
Whether you are an architect, contractor or want to build with EcoSteel, contact us today!




























