Coffee Roaster
Houston, TX
ARCHITECT: Paolo Volpis
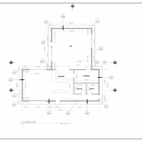
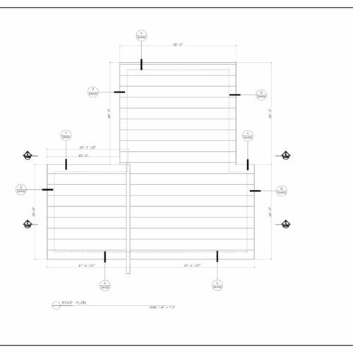
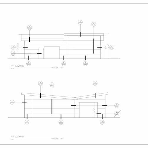
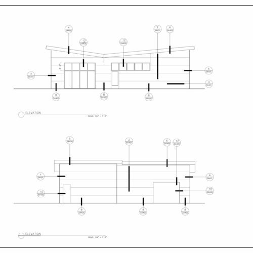
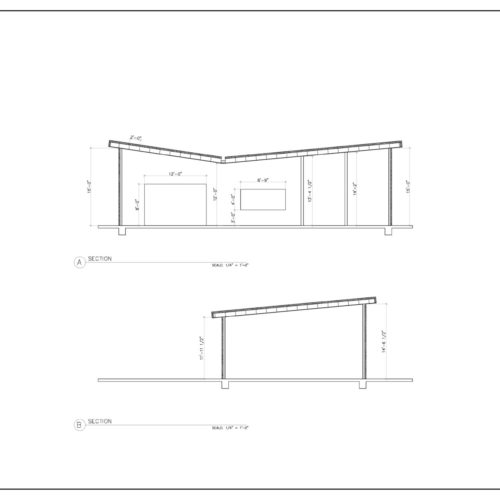
Modern Prefab Retail – Houston, TX Cafe ZunZun in Houston, TX is the first of its kind. A complete design collaboration with our coffee roasting clients to bring one of the most sustainable buildings and company practices H-Town has ever seen. Rooted in sustainable agriculture practices, climate stability, human rights, and enriching livelihoods, Cafe ZunZun is not just selling cups…
EcoSteel Building Systems
Learn more about this project
Whether you are an architect, contractor or want to build with EcoSteel, contact us today!













































































