Cannabis Cultivation + Extraction Lab
Riverside, CA
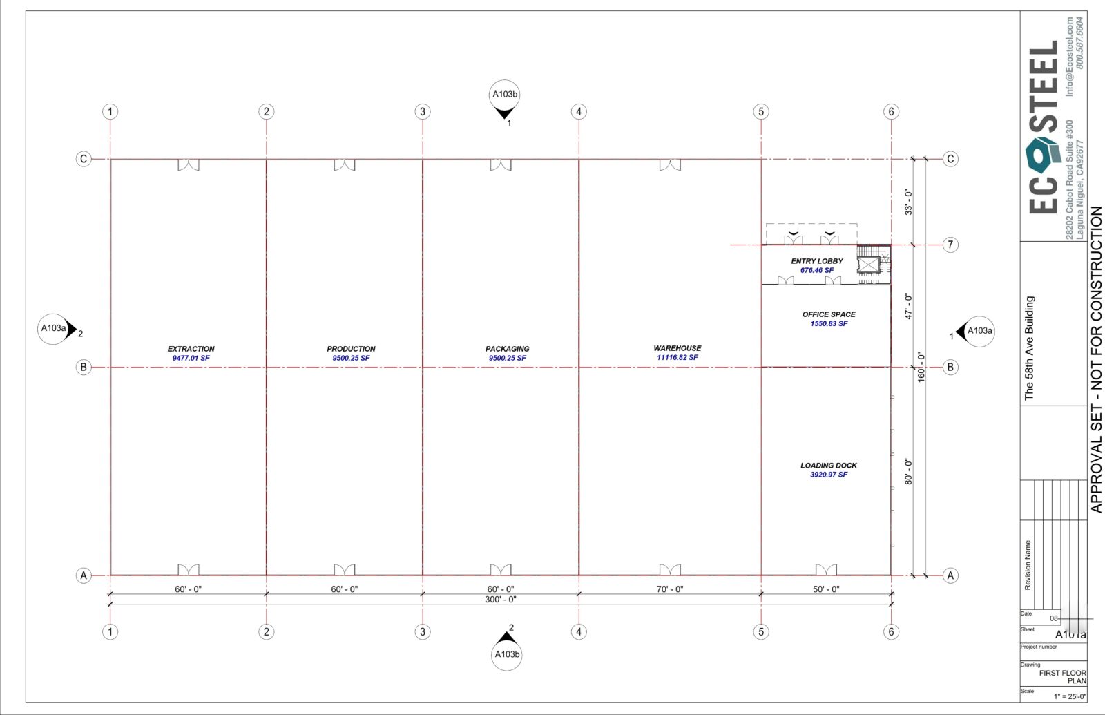
New 60,000SF Class A Office and Manufacturing Building; This is a Cannabis grow operation along with an extraction facility and research laboratory. The EcoSteel prefab structure and Insulated Metal Panels provide unmatched energy efficiency and air-tight construction required for precision buildings. EcoSteel has experience in many manufacturing and agricultural markets. For Cannabis facility engineering, it is a specialized process that…
EcoSteel Building Systems
Learn more about this project
Whether you are an architect, contractor or want to build with EcoSteel, contact us today!












