Remote Location + Prefab Construction
Cusabo Island, SC
ARCHITECT: Woollen Studio
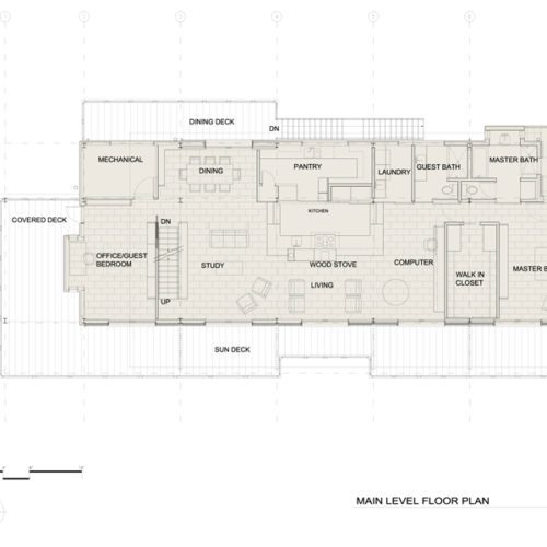
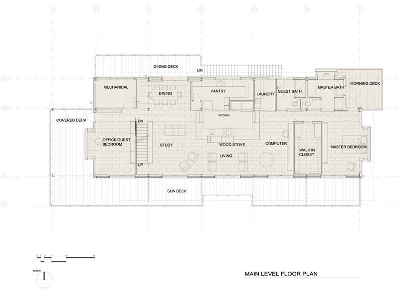
FEMA HURRICANE + FLOOD ZONE APPROVED PREFAB SYSTEM Cusabo Island, SC With a Private Island location at the mouth of the Atlantic Ocean sits a refuge in the woods against Hurricanes and frigid temperatures. With Steel a bolted Structure engineered to withstand 14FT Storm Surges, this impressive custom design is a testament to creative thinking. Architecture by Seattle-based Woollen Studio…
EcoSteel Building Systems
Learn more about this project
Whether you are an architect, contractor or want to build with EcoSteel, contact us today!

























