Custom Autobarn Collection
Fallbrook, CA
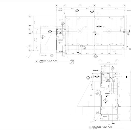
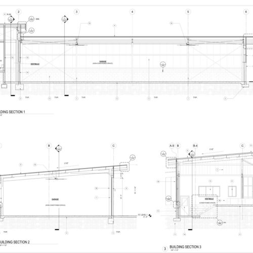
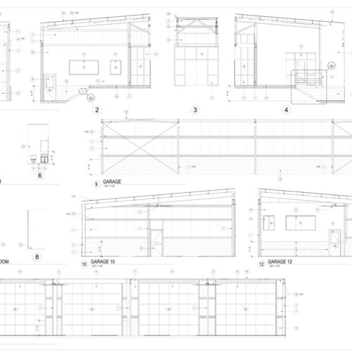
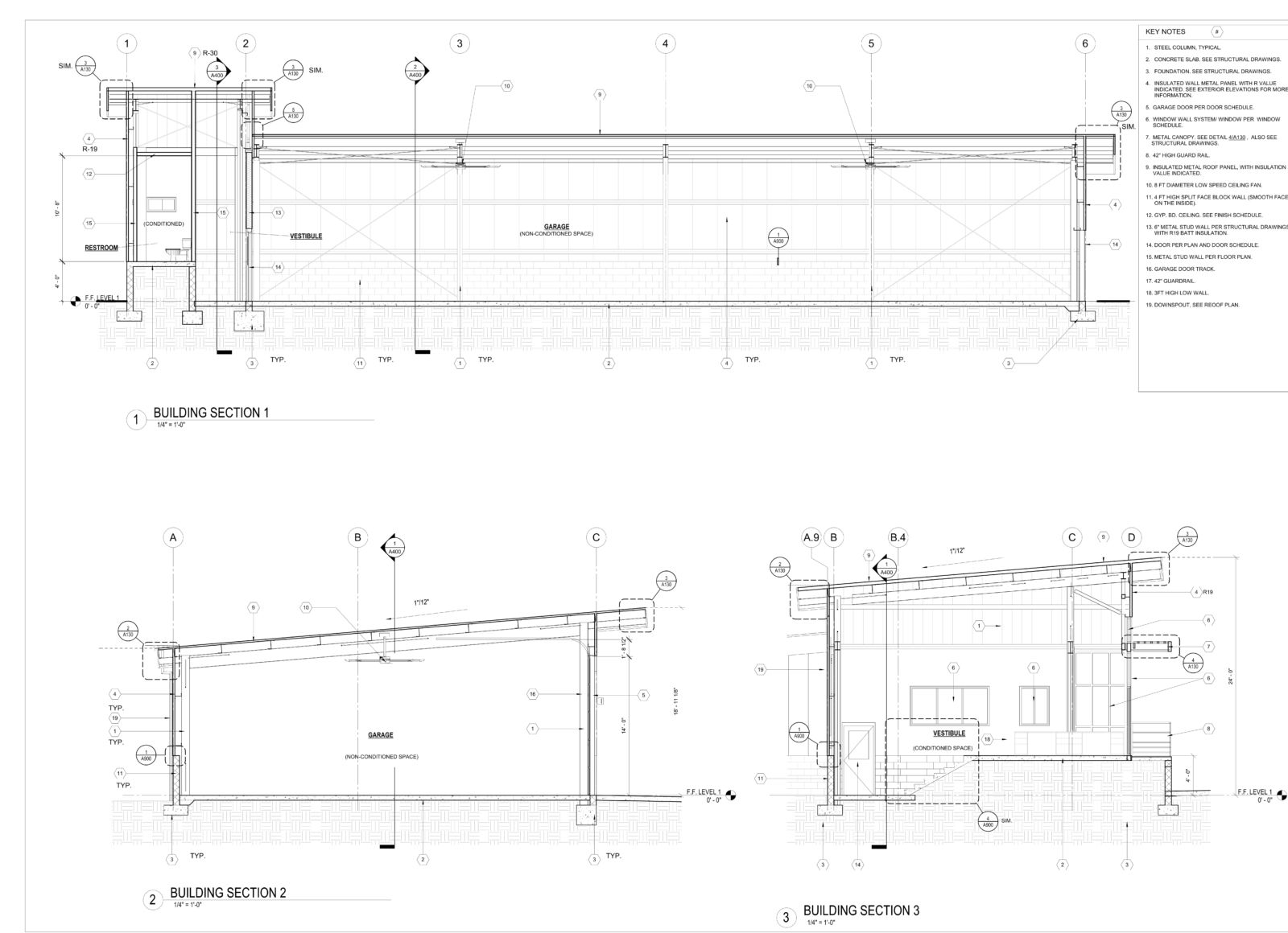
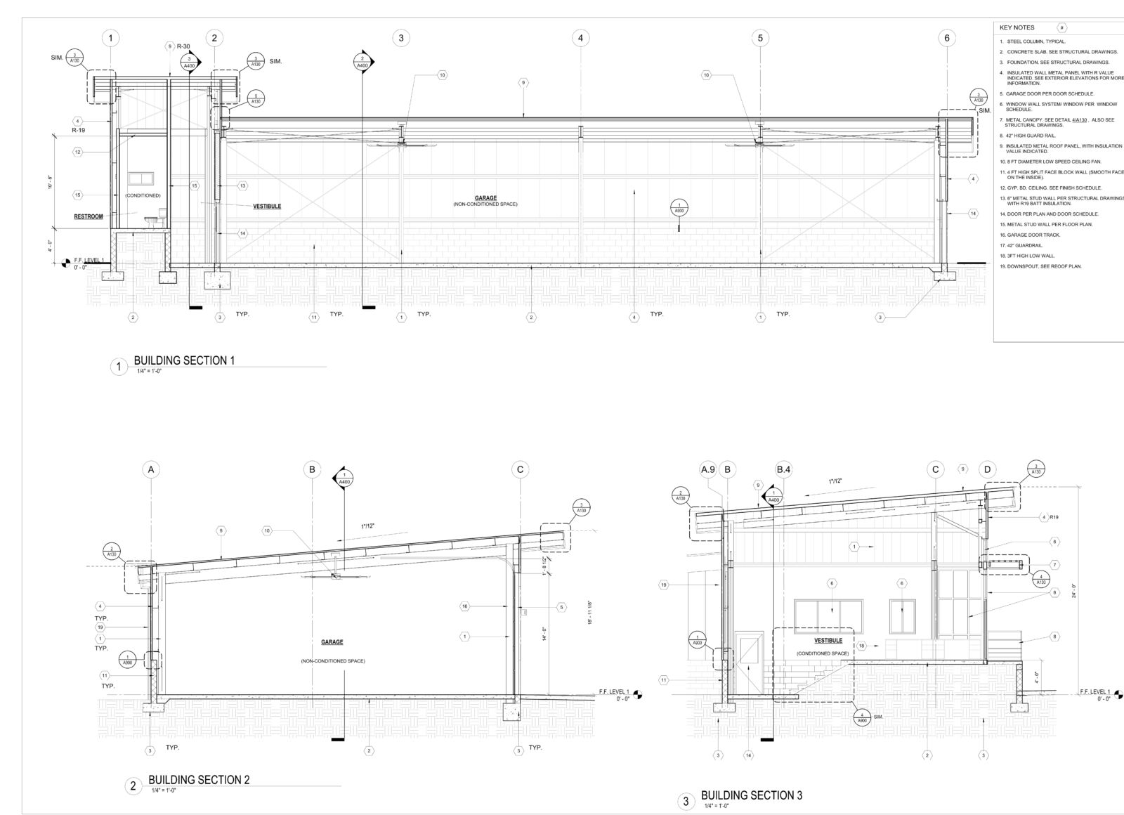
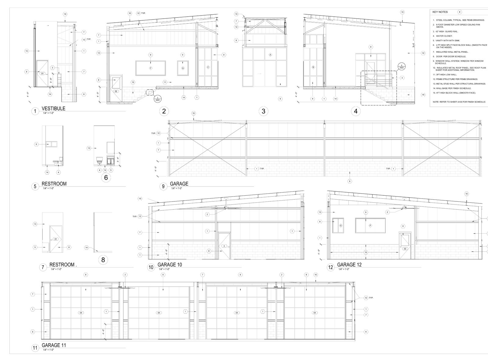
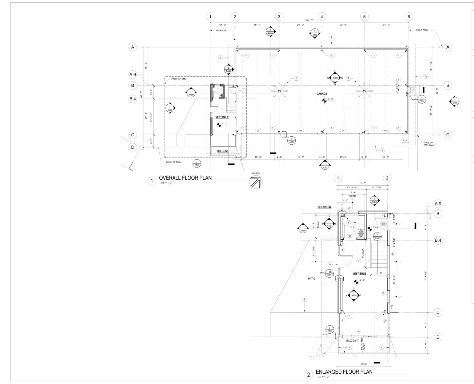
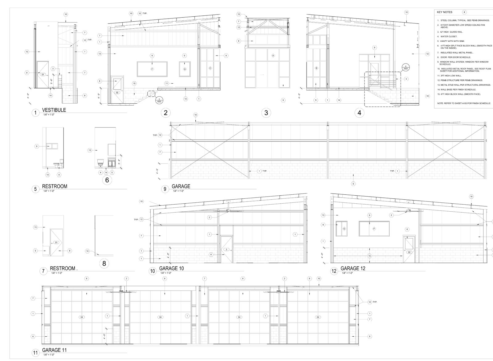
Modern Steel & Glass Construction – A new 4,000SF architect designed project for a private auto collection on a private ranch in Wine Country. The building has tall doors and ceilings for RV storage as well as to provide clearance for auto lifts to stack vehicles. The all steel / non-combustible building system was chosen to protect valuable assets from…
EcoSteel Building Systems
Learn more about this project
Whether you are an architect, contractor or want to build with EcoSteel, contact us today!







