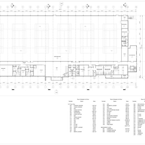
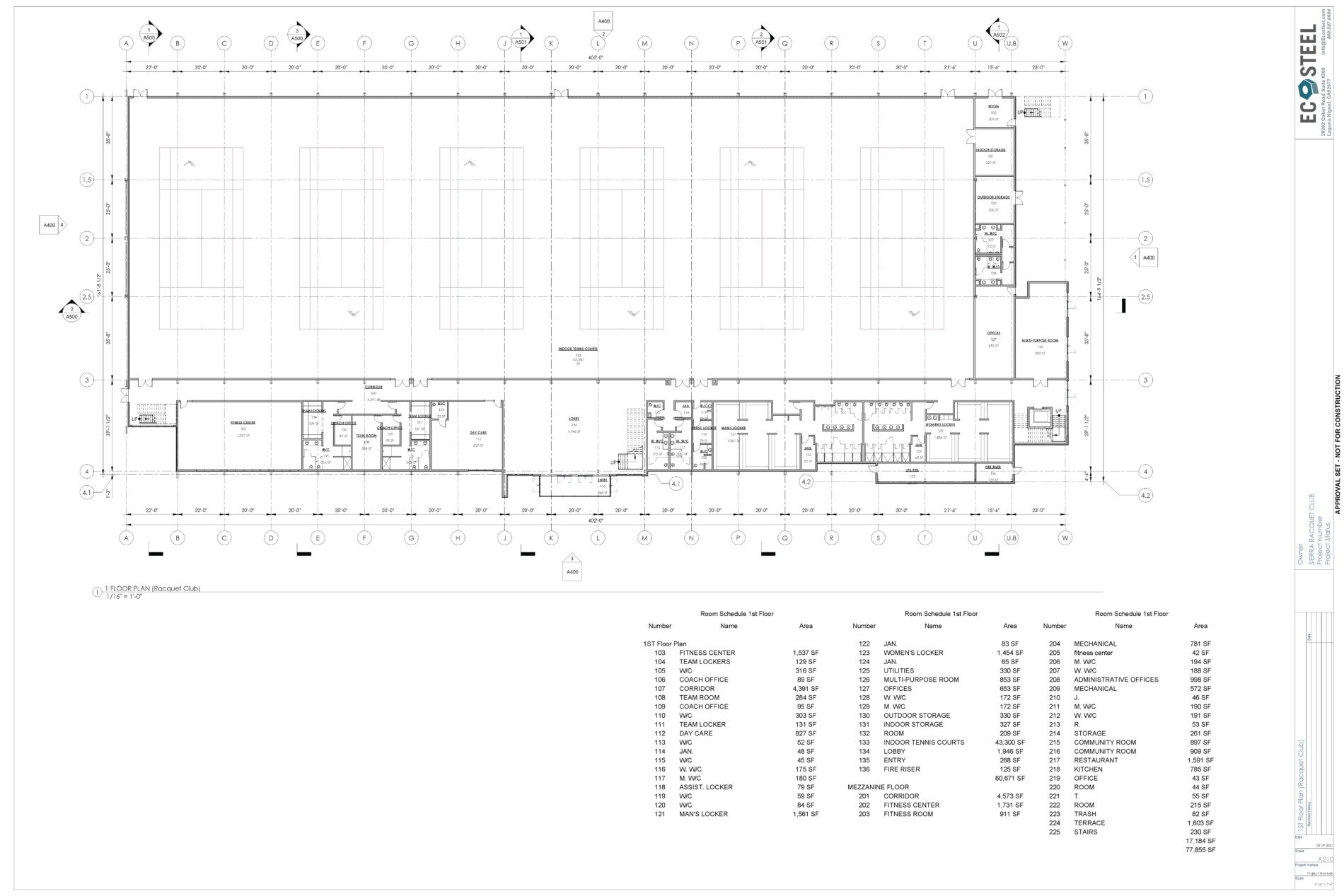
EcoSteel Racquet Club Project: Steel Building Excellence for Tennis, Padel, and Pickleball
At EcoSteel, we deliver high-performance steel buildings that combine speed, efficiency, and architectural flexibility. Our latest Racquet Club project showcases how pre-engineered steel systems outperform tilt-up concrete construction—especially for modern sports facilities. Designed to serve players of tennis, padel, and pickleball, this project demonstrates why steel is the best solution for today’s racquet clubs. Meeting the Growing Demand for Racquet Sports The popularity of…
EcoSteel Building Systems
Learn more about this project
Whether you are an architect, contractor or want to build with EcoSteel, contact us today!


















