Industrial Strength Architecture
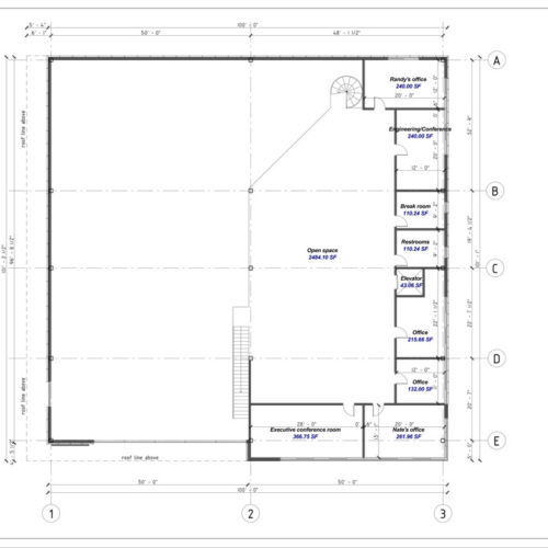
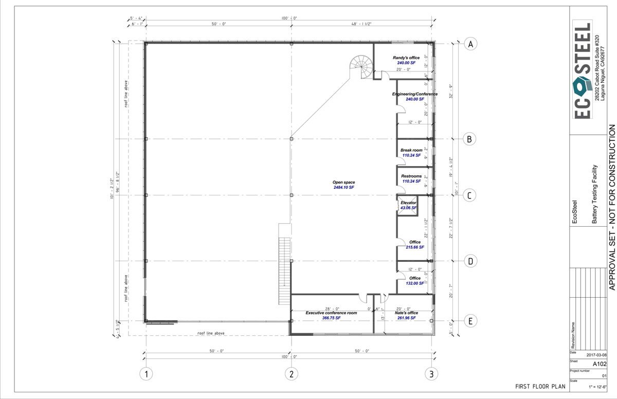
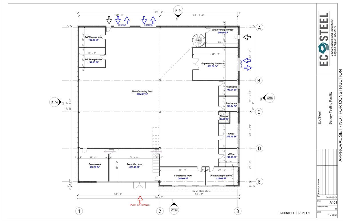
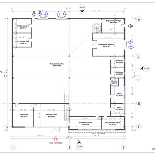
EcoSteel has created a low budget Class A Office/ Light Industrial prefab building system for a growing company. Architectural details including Insulated Steel Panels provide a stunning building with glass walls and custom colors. A clear span interior with second floor mezzanine for offices provides room for expansion and flex space. The superior insulation values and Fire Ratings of the…
EcoSteel Building Systems
Learn more about this project
Whether you are an architect, contractor or want to build with EcoSteel, contact us today!








