Mark West School
Santa Rosa, CA
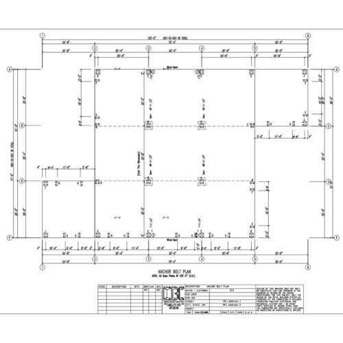
Santa Rosa, CA The Mark West school is a Fire Rebuilding project in Sonoma County, with all steel structural systems and Architectural / pre-insulated steel roof and wall panels. The custom 7,175 SF Building is solar ready with Insulated Steel / Standing Seam Roof Panels that achieve an R32. The Architectural Flat Wall Panels are Title 24 Compliant with R19…
EcoSteel Building Systems
Learn more about this project
Whether you are an architect, contractor or want to build with EcoSteel, contact us today!








