Maui Warehouse and Equipment Storage Building
Maui, HI
Maui Warehouse and Equipment Storage Building
Rebuilding Lahaina: A Fire-Safe, Pre-Engineered Steel Warehouse for CCF Maui Construction
The devastating wildfires in Lahaina left a profound impact on the island of Maui, changing the landscape and the community forever. As the island begins the long, arduous journey of recovery, resilient infrastructure has never been more critical. EcoSteel is deeply honored to be a part of the Maui fire rebuild process, partnering with local leaders who are spearheading the physical reconstruction of the community.
One such partner is CCF Maui Construction, a dedicated local contractor working tirelessly to rebuild Lahaina. To accomplish their massive scope of work, they needed a new, highly functional base of operations. EcoSteel stepped in to deliver a comprehensive, pre-engineered metal building solution tailored precisely to the unique logistical and environmental demands of the Hawaiian islands.
The Challenge: Constructing the Heart of Rebuilding Operations
For a company at the forefront of disaster recovery, a warehouse is much more than just a building—it is the vital heart of their daily operations. CCF Maui Construction needed a facility that could act as a secure staging ground for heavy machinery, a collaborative space for strategic meetings, and a comfortable refuge for their crew.
The tragic nature of the Lahaina fires also dictated a non-negotiable requirement for the new facility: absolute fire resilience. Traditional wood-framed construction was simply not an option. CCF Maui Construction required a structure engineered to withstand severe environmental threats while providing the expansive, unobstructed interior space necessary for an industrial contractor.
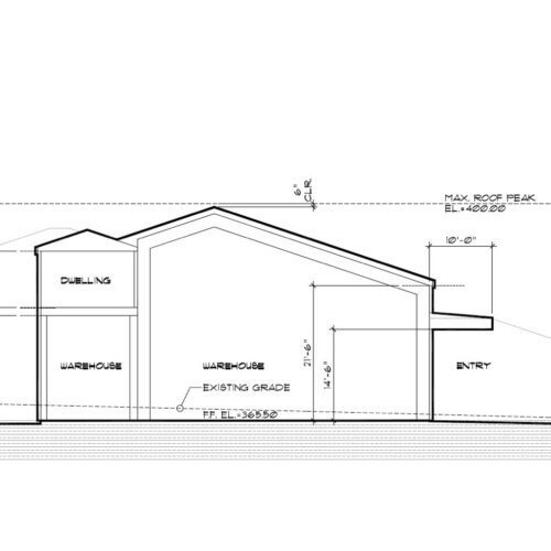
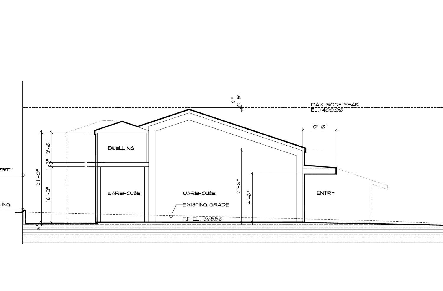
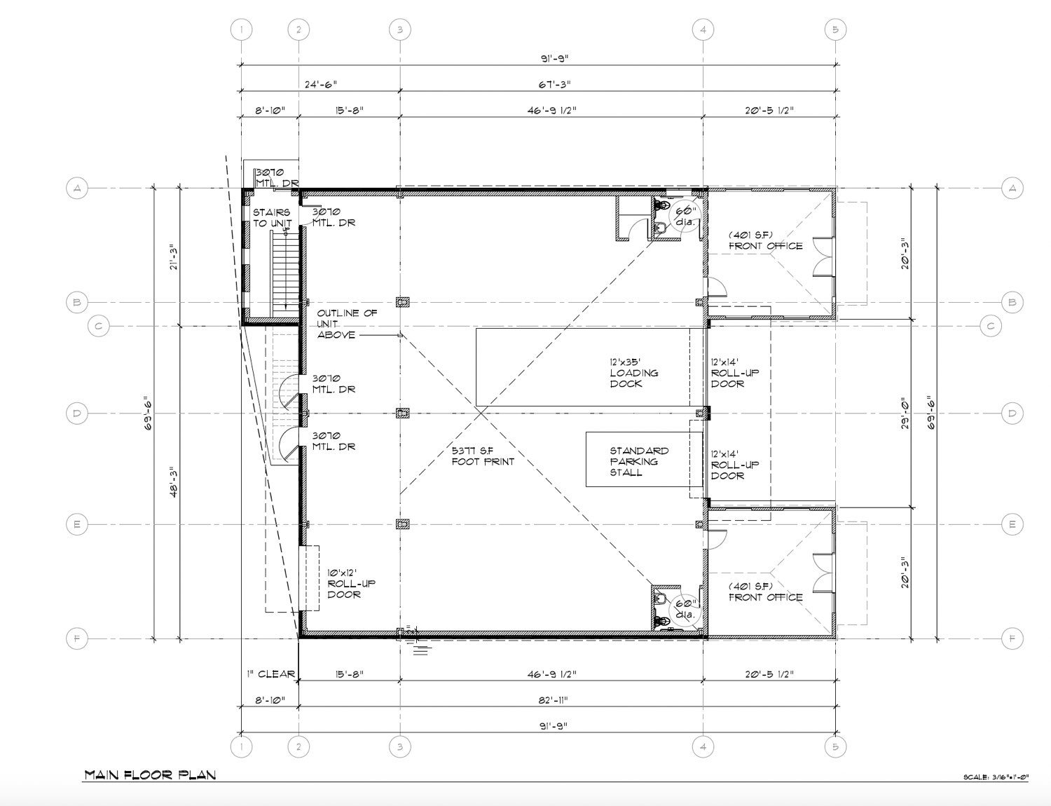
The EcoSteel Solution: A Custom 5,000+ Sq Ft Steel Warehouse
EcoSteel specializes in comprehensive, pre-engineered metal building warehouse production. Our goal for this project was to provide the CCF Maui Construction team with a state-of-the-art facility that seamlessly blends heavy-duty storage capabilities with essential human comforts.
Because the rebuilding crews are working exceptionally long hours under demanding conditions, the facility needed to be more than just a commercial equipment depot. We collaborated closely with their team to ensure the final structure could accommodate a dedicated meeting space and a small, integrated apartment complete with a traditional Hawaiian lanai, offering a critical resting place for the crew after exhausting days on the job site.
Key Project Features & Capabilities
To bring this multifaceted industrial building to life, EcoSteel provided end-to-end expertise and premium building materials. Our project scope for CCF Maui Construction includes:
- Advanced Structural Steel & Engineering Support: EcoSteel is supplying the key structural elements that form the unbreakable, fire-resistant skeleton of the warehouse. By providing a premium standing seam roof system and dedicated structural engineering support, we are ensuring our steel framework perfectly integrates with and supports the precise designs of CCF Maui Construction’s local Architect.
- Comprehensive Layout Optimization: Maximizing usable space is critical in commercial construction. We optimized the configuration of this 5,000+ square foot steel building to support a highly specific operational flow. The layout features distinct zones engineered for large equipment storage, safe material handling, professional office spaces, and the custom apartment with a lanai, ensuring every square foot serves a distinct purpose.
- Uncompromising Fire-Safe Design: In the wake of the Lahaina tragedy, building for survival is paramount. We are ensuring that this new warehouse is designed not just to meet, but to go above and beyond current fire-rated standards. By utilizing 100% non-combustible steel framing and specialized exterior cladding, the facility exceeds standard building codes and safety regulations, offering unparalleled peace of mind.
The Long-Term Value of Pre-Engineered Steel
The rebuilding of Maui is a marathon, not a sprint. The infrastructure erected today must be built to last for generations. Investing in a pre-engineered steel warehouse provides building owners with decades of dependable usage, minimal maintenance requirements, and the enduring ability to run their businesses effectively regardless of environmental challenges.
Steel structures offer superior resistance to fire, hurricane-force winds, seismic activity, and the corrosive, salt-heavy air of coastal environments like Hawaii. For industrial contractors like CCF Maui Construction, this translates to a high-performing, efficient facility that will safeguard their assets and personnel, allowing them to focus entirely on their mission of restoring their community.
Ready to Build Your Future?
Whether you are rebuilding a community or expanding your commercial enterprise, your operations deserve a foundation of unbreakable strength. EcoSteel is committed to delivering sustainable, fire-safe, and architecturally stunning metal buildings tailored to your exact needs.
Let EcoSteel help build your next industrial building into a high-performing, efficient facility ready to support your business for years to come.
EcoSteel Building Systems
Learn more about this project
Whether you are an architect, contractor or want to build with EcoSteel, contact us today!








