California Community and Fitness Center
Mendota, CA
California Community and Fitness Center
EcoSteel Pre-Engineered Metal Buildings: Revolutionizing Fitness and Community Centers in California
Project Overview
- Client: Mendota Community and Fitness Center
- Location: Mendota, California
- Architect: Gerald Mele & Associates
- Contractor: SAS Construction
- Engineer / Building Supply: EcoSteel Iconic Buildings
Introduction
California is experiencing a massive surge in the demand for modern, accessible recreational facilities. From bustling urban environments to tight-knit rural towns, municipalities and private developers are seeking innovative ways to build health and wellness infrastructure. However, city planners often hit a wall when faced with the soaring costs, prolonged timelines, and rigid design limitations of traditional or tilt-up concrete construction.
Enter EcoSteel. We are proud to showcase our recent collaboration on the Mendota Community and Fitness Center in Mendota, CA. Designed by the visionary team at Gerald Mele & Associates and erected by SAS Construction, this project stands as a prime example of how pre-engineered metal buildings (PEMBs) are setting a new standard for fitness and community centers across California.
The Challenge: Moving Beyond Traditional and Tilt-Up Construction
For decades, tilt-up concrete and traditional wood-frame construction have been the default choices for large-scale recreational facilities. But in today’s fast-paced, budget-conscious environment, these aging methods reveal significant drawbacks for commercial gym construction in California.
Tilt-up construction requires massive amounts of on-site space for casting concrete panels flat on the ground. Crews must wait extensively for the concrete to cure properly, leaving the timeline entirely at the mercy of the weather. Once cured, the panels require expensive, heavy-duty cranes to hoist or “tilt” them into place. Furthermore, the final aesthetic is often rigid and heavy, requiring costly architectural add-ons to make a community center look welcoming.
Traditional wood framing, on the other hand, struggles to safely and economically achieve the massive, column-free spaces required for basketball courts, swimming pools, and open-plan gym floors. The City of Mendota needed a solution that could bypass these hurdles, delivering a state-of-the-art community hub quickly and efficiently without compromising on structural integrity or design. EcoSteel provided the perfect blueprint.
The EcoSteel Advantage for Recreational Buildings
1. Unmatched Speed of Construction Time is money, especially in public works and commercial fitness development. The EcoSteel system dramatically accelerates the construction timeline. Because our steel components are precision-engineered and manufactured off-site in a controlled factory environment, they arrive at the Mendota job site ready for immediate assembly.
SAS Construction was able to bypass the lengthy delays associated with pouring, curing, and tilting concrete panels. There is no waiting for materials to dry, and weather dependencies are drastically reduced. As soon as the foundation is set, the steel skeleton goes up in a fraction of the time of traditional builds. This accelerated schedule means community centers can open their doors to the public months ahead of schedule, generating revenue and community value faster.
2. Superior Durability and Safety California’s unique geography demands resilient architecture. Building in the Golden State means adhering to some of the strictest seismic codes in the world, while also mitigating risks from wildfires and extreme Central Valley temperatures.
Our pre-engineered metal buildings offer an unparalleled strength-to-weight ratio. Unlike wood, which can rot, warp, or fall victim to termite damage, and concrete, which can crack and fail under severe seismic stress, an EcoSteel building flexes and reliably absorbs seismic energy. This makes the Mendota Community and Fitness Center incredibly safe for its patrons. Furthermore, steel is inherently non-combustible, offering superior fire resistance—a crucial factor for any public assembly building in California.
3. Economical and Cost-Effective at Every Phase Budget overruns are the bane of municipal projects. EcoSteel brings absolute cost certainty to the table. By leveraging advanced 3D modeling and pre-fabrication, material waste is virtually eliminated. Every piece of steel is cut to exact specifications before it ever reaches Mendota, drastically reducing on-site labor hours and refuse disposal costs compared to the heavy waste generated by traditional builds.
The economic benefits extend far beyond the initial build. EcoSteel buildings are designed for superior energy efficiency. High-performance insulated metal panels (IMPs) wrap the building envelope, creating a thermal barrier that keeps the California heat out during the summer and retains warmth in the winter. For a massive facility like a fitness center, where HVAC costs can easily eat up operating budgets, this translates to tens of thousands of dollars in lifetime savings.
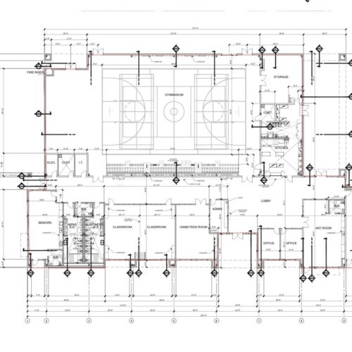
Architectural Versatility: The Power of the Clear Span
A common misconception is that metal buildings must look like industrial warehouses. Gerald Mele & Associates shattered this myth by utilizing EcoSteel’s highly customizable framing system to create a visually striking, welcoming environment that integrates seamlessly into the Mendota community.
The cornerstone of recreational design is the “clear span.” Fitness centers require wide, uninterrupted open spaces for indoor sports, large equipment zones, and aerobic studios. EcoSteel’s advanced engineering allows for massive clear spans without a single interior support column. This gave the architects the ultimate freedom to optimize the Mendota Community and Fitness Center’s floor plan, maximizing usable square footage and natural light integration in a way that tilt-up concrete simply cannot achieve economically.
Building the Future of California Fitness Centers
The successful delivery of the Mendota Community and Fitness Center proves that the days of settling for slow, expensive, and inflexible construction methods are over. Through the combined expertise of EcoSteel, Gerald Mele & Associates, and SAS Construction, Mendota now boasts a community crown jewel that was built faster, stronger, and more economically than previously possible.
For fitness franchises, municipal leaders, and community center developers across California, EcoSteel offers the ultimate competitive advantage. We provide a sustainable, high-performance building solution that respects your budget, accelerates your timeline, and empowers your architectural vision.
EcoSteel Building Systems
Learn more about this project
Whether you are an architect, contractor or want to build with EcoSteel, contact us today!










