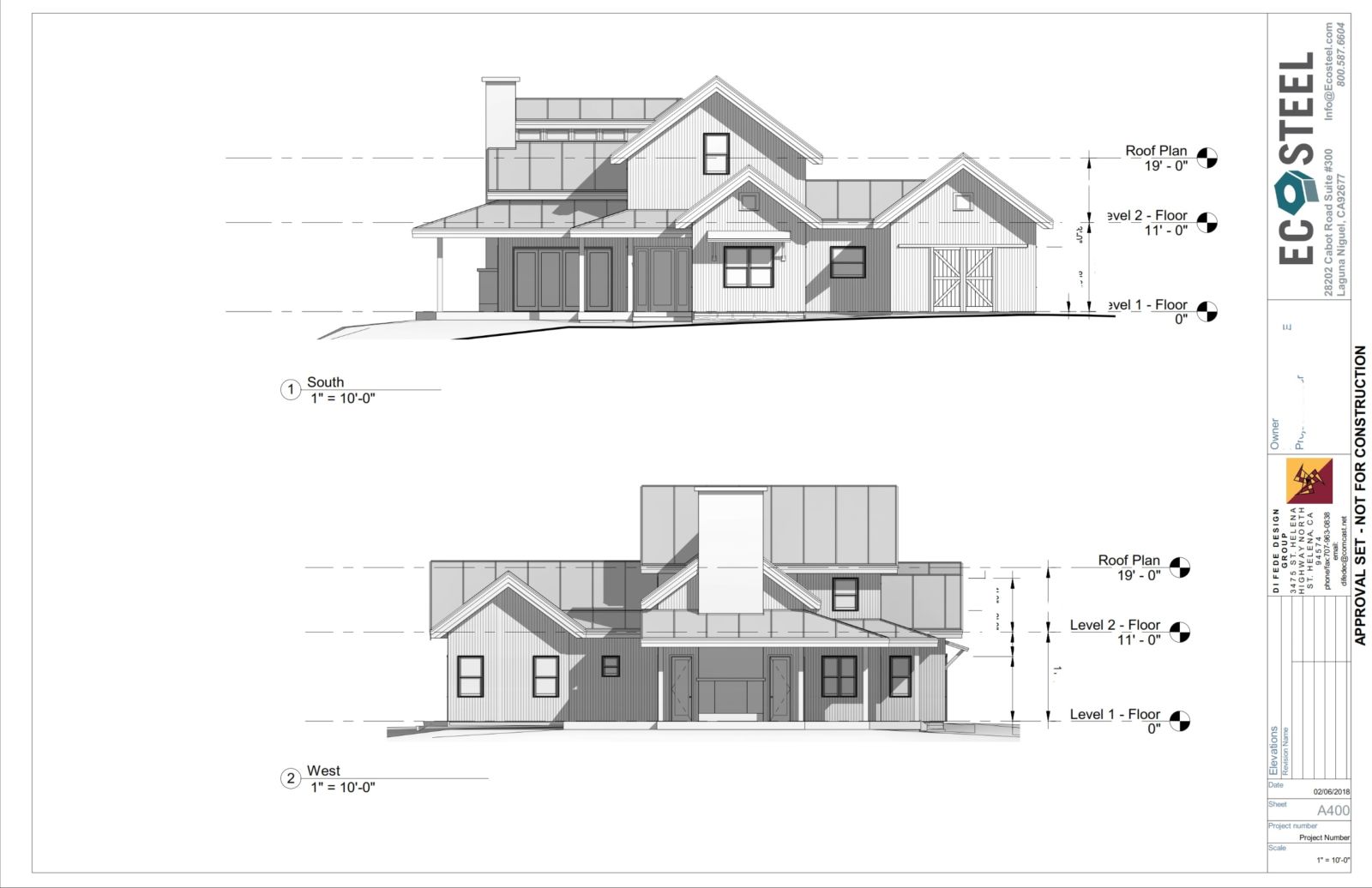
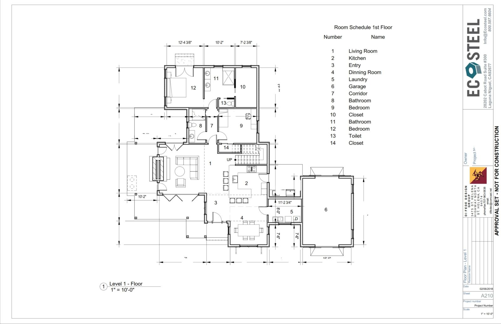
Custom Home – Fire Rebuild
Santa Rosa, CA
ARCHITECT: DiFede Design Group
* All steel Non-Combustible Construction to replace a lumber frame destroyed by Wildfire. Another fantastic example of steel architectural design from DiFede Design Group.…
EcoSteel Building Systems
Learn more about this project
Whether you are an architect, contractor or want to build with EcoSteel, contact us today!





























































