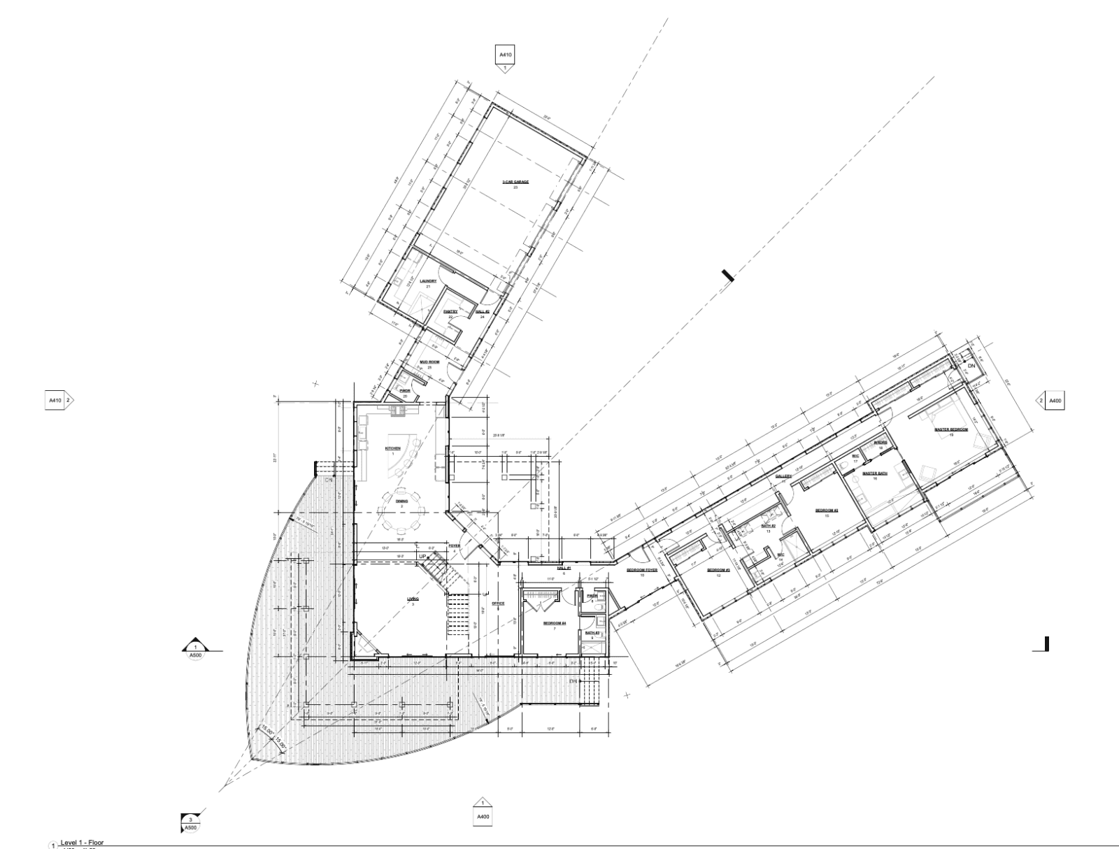
Pleasanton CA Modern Home
Pleasanton, CA
ARCHITECT: Eric Hare of Eric A Hare Residential Design
Currently in for permit, this 5,000 SF custom modern steel home uses the perfect combination of EcoSteel insulated roof and wall panels (imps) paired with composite wood to soften the design. Designed by Architect Eric Hare based out of Walnut Creek, CA this project expresses the property expansive views with walls of glass and large openings. Stay tuned for this…

EcoSteel Building Systems
Learn more about this project
Whether you are an architect, contractor or want to build with EcoSteel, contact us today!