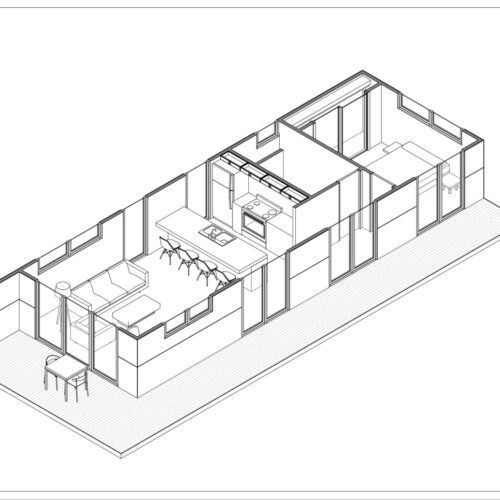
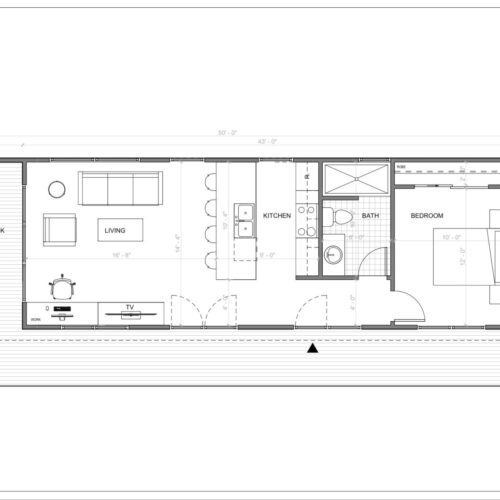
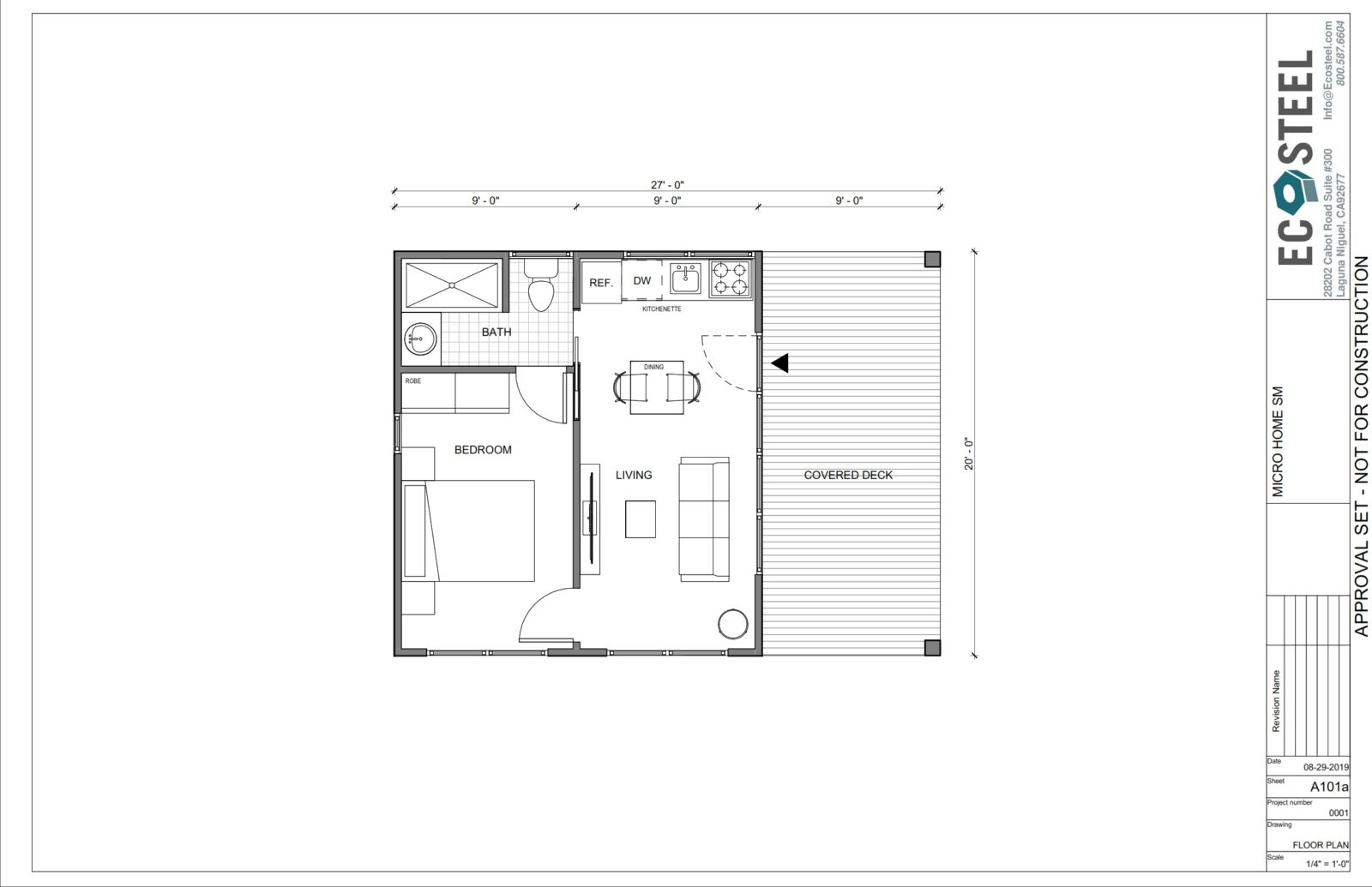
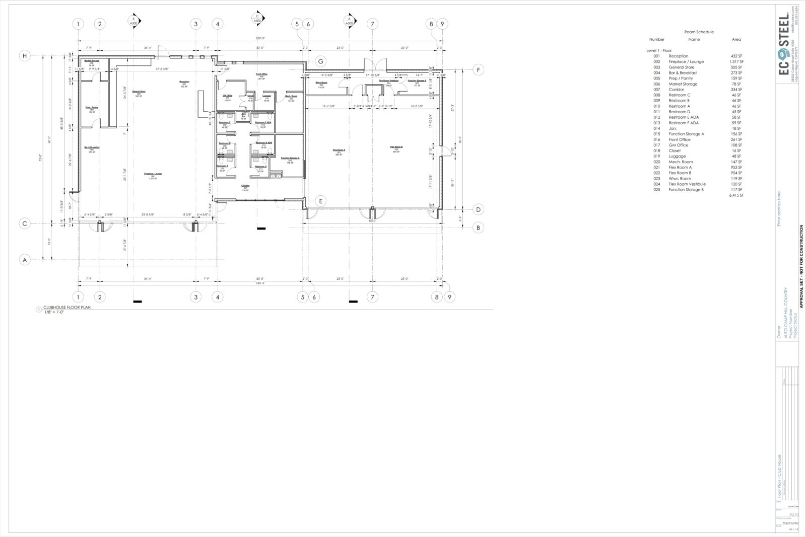
Prefab Clubhouse + MicroHomes
Austin, TX
This 8,000SF steel and glass structure is designed to be energy efficient and withstand extreme temperature changes. The building is designed to withstand Hurricane Force winds and is engineered with Non-Combustible all steel components for a Fire Safe building. This is a remote “Glamping” destination, which is a term for Glamorous Camping. The concept is to be out in nature…
EcoSteel Building Systems
Learn more about this project
Whether you are an architect, contractor or want to build with EcoSteel, contact us today!



























