Prefab Office HQ Design
Manhattan Beach, CA
ARCHITECT: James R. Meyer
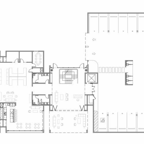
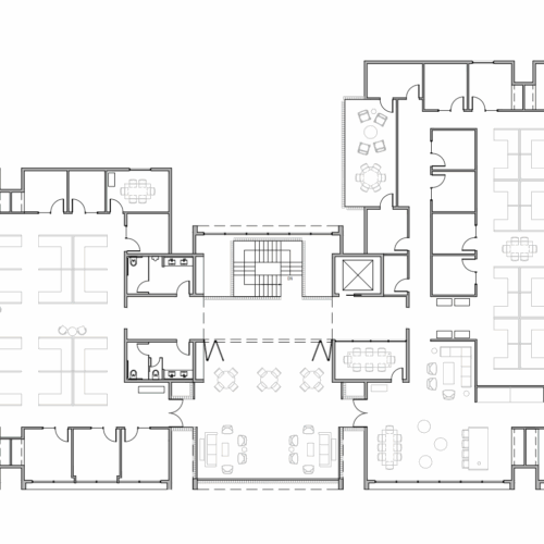
The innovative work of James R. Meyer Architecture, combined with the many time-tested attributes of pre-engineered metal buildings from EcoSteel, has resulted in a head-turning design for an office building envisioned for a hilltop in Manhattan Beach. The building, featuring a series of five glass-fronted, two-story components each standing beneath its own separate gable roof, was designed by architect James…
EcoSteel Building Systems
Learn more about this project
Whether you are an architect, contractor or want to build with EcoSteel, contact us today!










