The Pinnacle of Steel Framed Homes
San Francisco, CA
ARCHITECT: Walker Moody
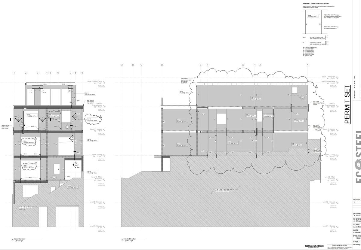
This San Francisco Modern Hillside Home will set the bar for Luxury Prefab Construction At the top of the Famous Lombard area of San Francisco sets an All Steel 6 Story Residence with Two Hour Fire Rated Panels and car elevator. The owners can exit the vehicle inside garage to allow 2nd floor access without leaving the drivers seat. Bolted…
EcoSteel Building Systems
Learn more about this project
Whether you are an architect, contractor or want to build with EcoSteel, contact us today!































































