Steel Aviation Hangar
UTAH
Steel Aviation Hangar
Premium 175×200 Steel Aviation Hangars: The Ultimate Protection for Your Fleet
In the world of aviation, your assets are worth millions, but the infrastructure that protects them is priceless. Whether you are managing a Fixed Base Operator (FBO), a private corporate fleet, or a commercial maintenance facility, the structural integrity of your hangar is paramount.
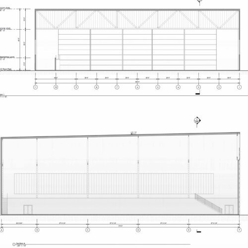
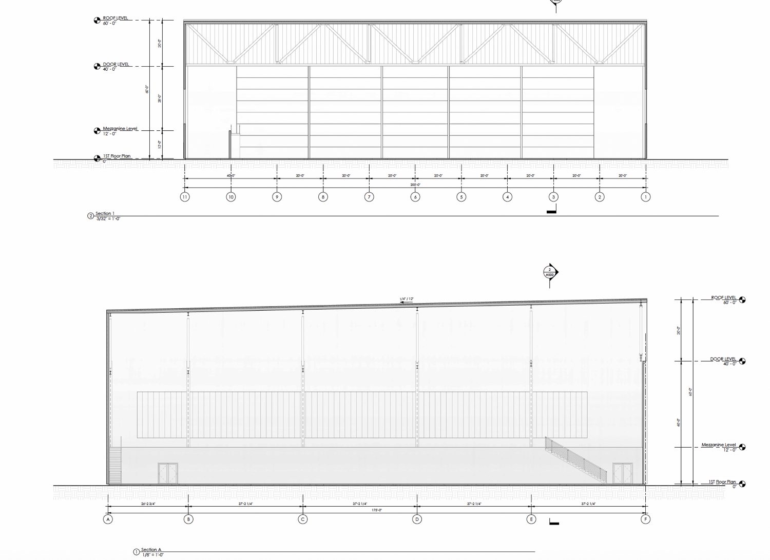
At EcoSteel, we specialize in high-performance, pre-engineered metal buildings designed to meet the rigorous demands of the aviation industry. Our flagship offering for mid-to-large-scale operations is the 175×200 foot (35,000 sq. ft.) aviation building. Engineered for maximum strength, versatility, and unobstructed floor space, this structure represents the gold standard in modern aircraft storage and maintenance facilities.
The 35,000 Sq. Ft. Advantage: Why 175×200?
Selecting the right footprint is critical for operational efficiency. A 175’ wide by 200’ long facility provides a massive 35,000 square feet of floor space, offering a “sweet spot” for aviation professionals. It provides enough depth to stack multiple smaller aircraft while maintaining the necessary width to maneuver larger business jets without the risk of “hangar rash.”
For growing aviation companies, this size offers future-proof flexibility. You aren’t just building for the aircraft you own today; you are building for the fleet you will manage tomorrow. The 35,000 sq. ft. layout is ideal for:
- Commercial Maintenance Repair & Overhaul (MRO) facilities.
- Private luxury hangars for corporate jets.
- Aviation storage with attached office complexes.
Clear-Span Interiors: Unobstructed Maneuverability
The defining feature of an EcoSteel aviation hangar is the clear-span interior design. Traditional construction methods often require internal support columns that clutter valuable floor space and create collision hazards for wingtips and stabilizers.
Our pre-engineered steel frames eliminate the need for load-bearing interior columns entirely. In an EcoSteel hangar, you get 100% usable space. This wide-span engineering allows for:
- Safe Maneuvering: Tugs and ground crews can position aircraft freely without navigating around obstacles.
- Flexible Layouts: You can reconfigure maintenance zones, shelving, and equipment storage instantly as your operational needs change.
- Maximized Capacity: Fit more planes into the same footprint by optimizing parking angles that columns would otherwise block.
Accommodating the Modern Fleet
A hangar is only as good as the aircraft it can house. The EcoSteel facility is engineered to accommodate a versatile range of aircraft, from turboprops to heavy business jets.
Depending on your customized eave height and door configuration, this facility is capable of housing:
- Versatile Turboprops: Easily house multiple Pilatus PC-12s or King Airs with ample room left for maintenance equipment.
- Mid-Size Jets: Perfect for a fleet of Learjet 45/75s, Citation Latitudes, or Challengers.
- Large Cabin Jets: The 100-foot width and clear span are specifically suited for flagship business jets like the Gulfstream G650 or Bombardier Global 7500.
By customizing the eave height—typically ranging from 20 to 30 feet—we ensure that even the tallest vertical stabilizers clear the header with room to spare.
Uncompromising Durability and Climate Resilience
Aviation assets are highly sensitive to environmental elements. An EcoSteel hangar acts as a fortress against the weather. Constructed from high-quality, commercial-grade steel, our buildings are designed to withstand the specific environmental loads of your location.
- High Wind Resistance: Our frames are engineered to meet or exceed local codes for hurricane-force winds, ensuring your aircraft remain safe during severe storms.
- Heavy Snow Loads: For northern climates, our rigid steel framing supports heavy snow accumulation without compromising structural integrity.
- Fire and Pest Resistance: unlike wood structures, EcoSteel buildings are non-combustible and impervious to termites and rot, significantly lowering insurance premiums and long-term maintenance costs.
Precision Customization for Aviation Needs
At EcoSteel, we understand that a hangar is more than just a garage for planes; it is a sophisticated workplace. Our metal buildings are fully customizable to support complex aviation operations.
Hangar Doors
The door is the moving wall of your facility. We integrate with top-tier manufacturers to install the door system that fits your operational flow:
- Hydraulic Bi-Fold Doors: For maximum clearance and ease of use.
- Bottom-Rolling Sliding Doors: Ideal for extremely wide openings.
- Vertical Lift Doors: For a sleek, architectural look and space saving.
Climate Control and Insulation
Condensation and extreme temperatures are enemies of avionics and airframes. EcoSteel hangars can be fitted with high-performance insulation packages that provide superior thermal efficiency. This ensures a climate-controlled environment that protects sensitive electronics and keeps maintenance crews comfortable year-round.
Integrated Living and Work Spaces
Transform your structure into a multi-functional headquarters. The clear-span design easily accommodates internal build-outs for:
- Pilot and Crew Quarters: Lounges, sleeping areas, and kitchens.
- Executive Offices: High-end finishes for client-facing areas.
- Workshops: Dedicated zones for parts storage and mechanical repairs.
Safety and Compliance
We ensure your building is ready for permitting by incorporating essential safety features, including advanced ventilation systems for exhaust fumes, skylights for natural energy-efficient lighting, and engineering that meets all local building codes and seismic requirements.
Build Faster, Build Smarter with EcoSteel
When you choose EcoSteel, you are choosing a streamlined construction process. Our pre-engineered components are cut and drilled at the factory, allowing for rapid assembly on-site. This significantly reduces construction time compared to traditional building methods, meaning you can move your aircraft in sooner and start generating revenue faster.
Protect your legacy. secure your fleet.
If you are ready to upgrade your aviation infrastructure with an EcoSteel Hangar, contact us today to discuss your specific requirements. Let’s build a facility that reflects the excellence of the aircraft inside it.
EcoSteel Building Systems
Learn more about this project
Whether you are an architect, contractor or want to build with EcoSteel, contact us today!





