Ultra Luxe Custom Residence
Shingle Springs, CA
ARCHITECT: Paolo Volpis
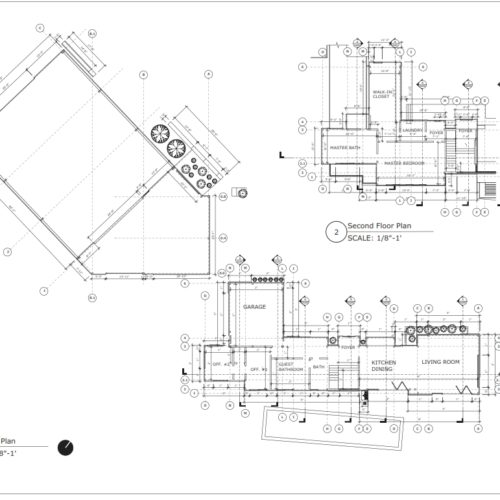
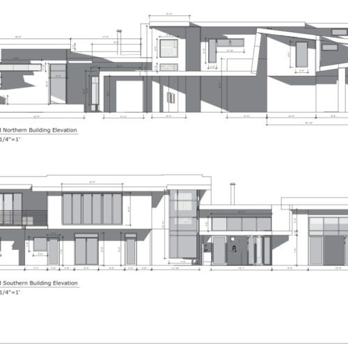
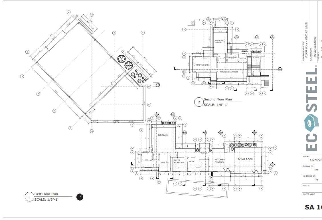
The Ultra Luxe Custom Residence has a 2,700 square feet main house with double ceiling height living room and indoor/outdoor kitchen facing the adjacent lake. On the ground floor there are also a guest bedroom and two office spaces for both husband and wife, while on the second floor the master bedroom overlooks the entry and the living space, and…
EcoSteel Building Systems
Learn more about this project
Whether you are an architect, contractor or want to build with EcoSteel, contact us today!
















