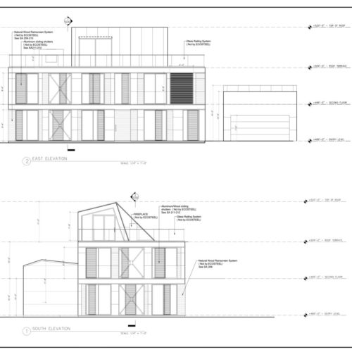
Custom Steel Home
Oakland, CA
ARCHITECT: Paolo Volpis
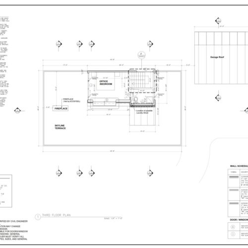
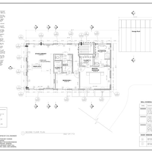
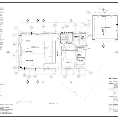
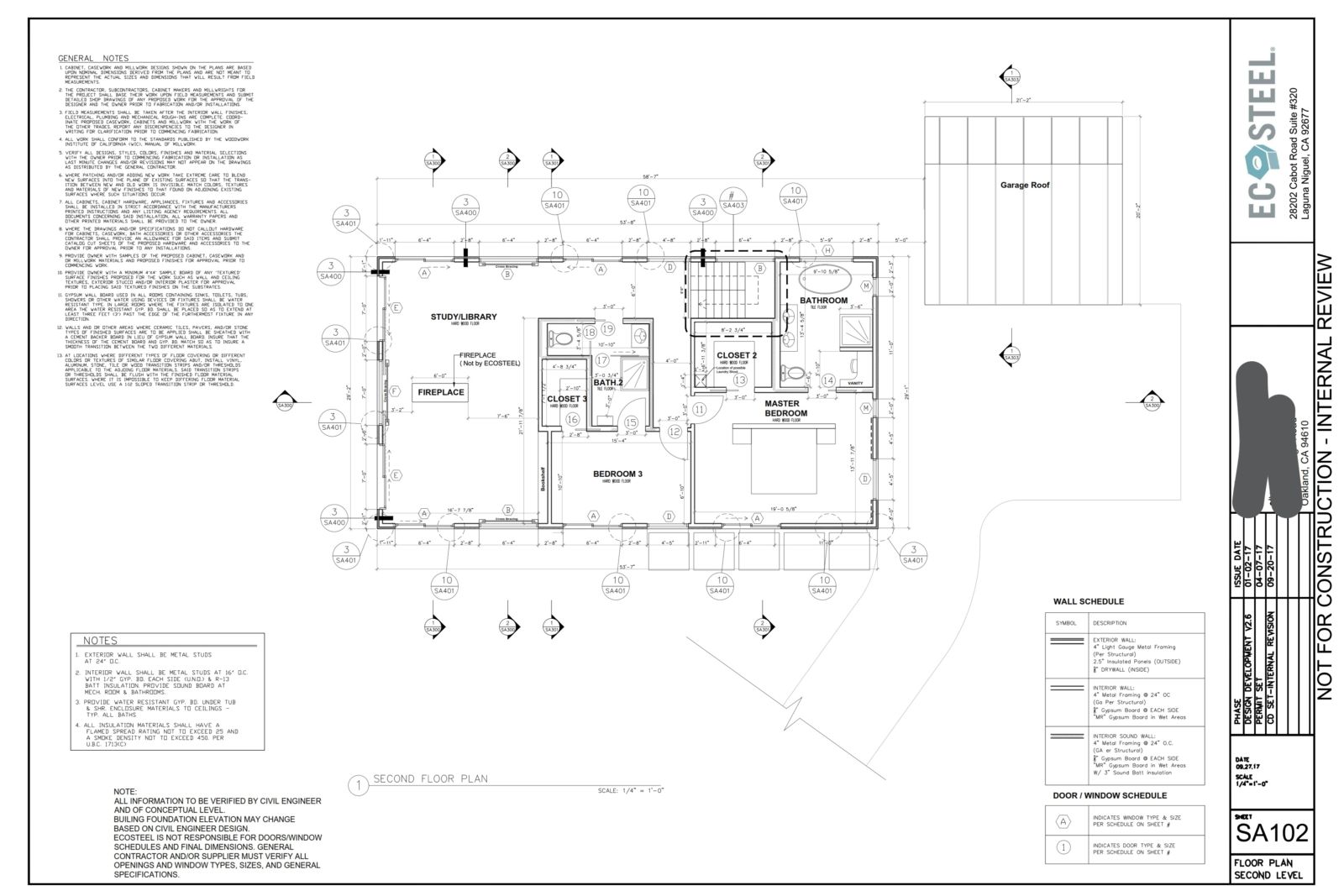
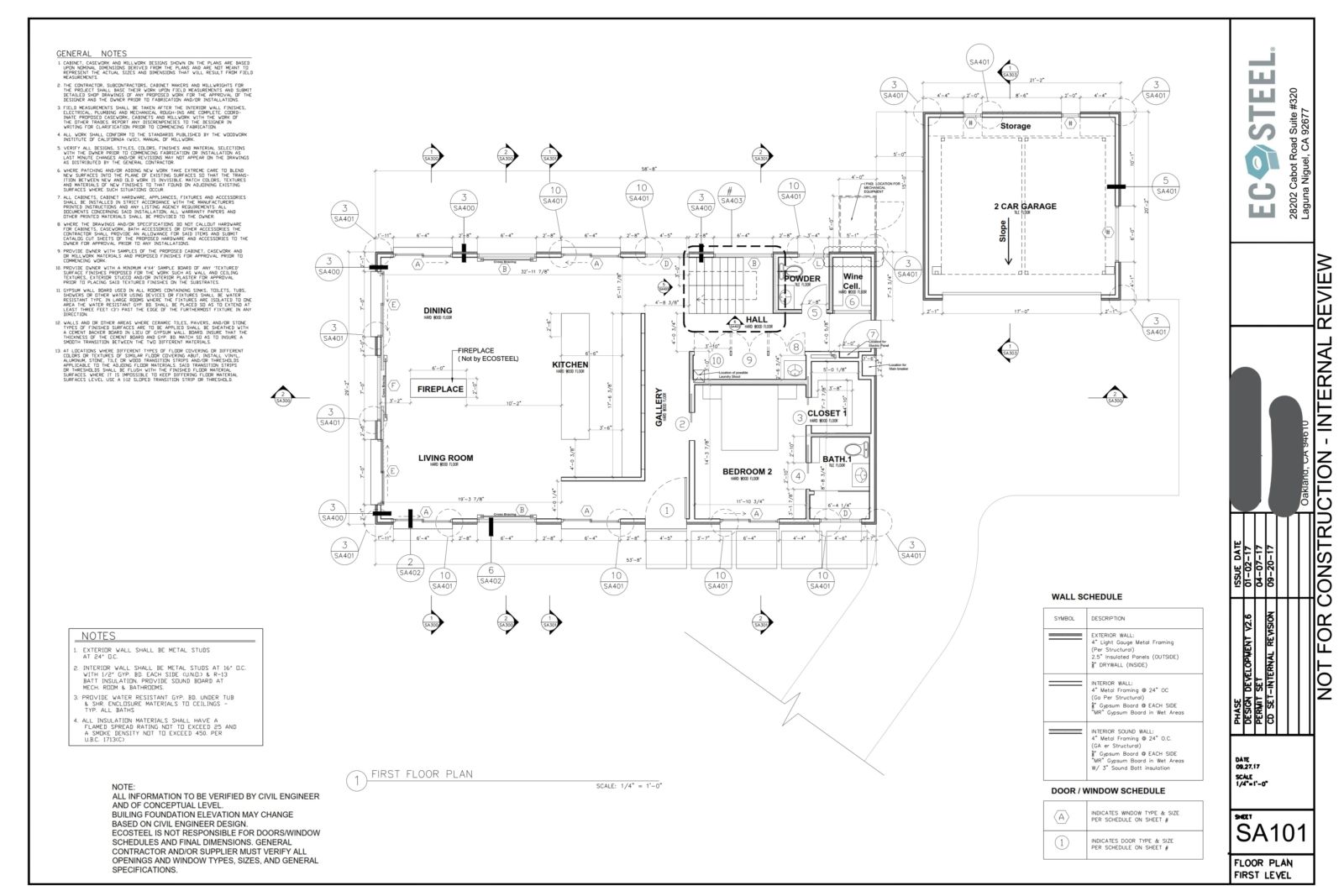
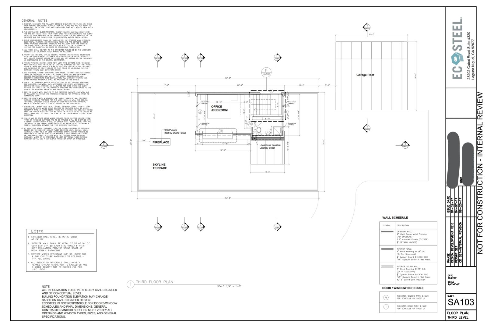
This new Bay Area custom all steel home has many exciting features, including walls of glass with commanding views. With a roof deck, sliding sun shades and a living area of just over 3,000SF, this stunning EcoSteel custom steel building in California (designed by Paolo Volpis) is now under construction. The owner specified a custom dark grey/ metallic finish for…
EcoSteel Building Systems
Learn more about this project
Whether you are an architect, contractor or want to build with EcoSteel, contact us today!























































































